Doppelhäuser
Doppelhaus Juliane
INTERESSANTE GRUNDRISSLÖSUNG
Doppelhaus – mal anders gefällig? Zwei raumhohe Geschosse mit Pultdach, eine großzügige Belichtung und ein reizvoller Anbau im Obergeschoss mit darunterliegendem Carport unterstreichen diese Architektur.
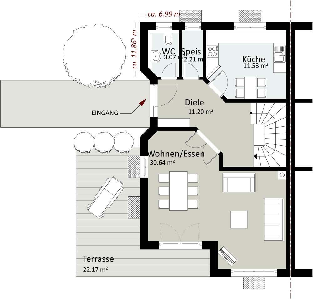
Doppelhaus Sandra
MIT UND OHNE STUDIOAUSBAU
Der zurückgesetzte Hauseingang am Giebel, ein geschützter Terrassenbereich und die angenehm große Diele sind die Besonderheiten bei diesem Doppelhaus. Ein mögliches Studio im Spitzboden bietet noch zusätzlichen Wohnraum.























